廣東煙草湛江市有限公司營銷管理中心2022年農網終端收銀一體柜物資采購項目澄清更正公告(湛江)
各投標人:
一、項目基本情況:
項目編號:YC22475054(CGP)
項目名稱:廣東煙草湛江市有限公司營銷管理中心2022年農網終端收銀一體柜物資采購項目
首次公告日期:2022年8月18日
二、更正信息:
更正事項:招標公告、招標文件
更正內容:
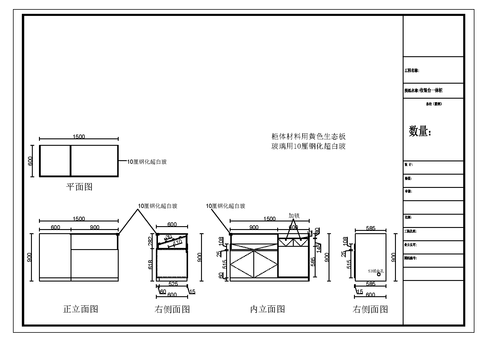
1、原招標文件:“第二部分用戶需求書”“二、技術參數★”及“第四部分合同格式”“3.技術參數”中“尺寸1500mm×500mm×900mm(長×寬×高)”。
更正為:“第二部分用戶需求書”“二、技術參數★”及“第四部分合同格式”“3.技術參數”中“尺寸1500mm×600mm×900mm(長×寬×高)”。
2、原招標文件:“第二部分用戶需求書”“四、投標樣品要求:”中“樣品制作的標準和要求1500mm×500mm×900mm(長×寬×高)”。
更正為:“第二部分用戶需求書”“四、投標樣品要求:”中“樣品制作的標準和要求1500mm×600mm×900mm(長×寬×高)”。
3、原招標文件:“第二部分用戶需求書”“二、技術參數★附圖”及“第四部分合同格式附圖”。

更正為:“第二部分用戶需求書”“二、技術參數★附圖”及“第四部分合同格式附圖”。

4、原招標文件:“投標截止時間及開標時間2022年09月09日15時30分”。
更正為:“投標截止時間及開標時間2022年09月19日15時00分”。
三、聯系方式信息:
招標人名稱:廣東煙草湛江市有限公司
聯系人:李先生電話:0759-2223979傳真:0759-2223979
聯系地址:湛江開發區人民大道中26號工業大廈第七層701-703室
本澄清公告內容與原招標文件不一致之處,以本公告為準,投標保證金截止時間相應延長,其他內容不變。
廣東煙草湛江市有限公司
億誠建設項目管理有限公司
日期:2022年09月02日
下一篇: 已經是最后一篇了 上一篇: 英德監獄外小圍墻修繕工程造價服...
相關資訊
- 英德監獄外小圍墻修繕工程造價服務采購項目中選結果公告(清遠)
- 新豐縣松園園區電力遷改項目(10kV線路)-園洞電站支線臨時用電遷改工程預算編制中選結果公告(韶關)
- 廣東煙草湛江市有限公司物流配送中心2022-2025年倉儲及分揀設備維保服務項目中標結果公示(湛江)
- 億誠管理參加第二屆陜西省建設工程造價專業人員職業技能競賽初賽
- 學校操場東南側跑道地面硬化工程造價咨詢中選結果公告(汕頭)
- 勵學樓內庭天面圍墻安全防護、保管室及其它零星修繕工程造價咨詢中選結果公告(汕頭)
- 南朗街道生活小區污水收集改造工程(一期)監理項目中選結果公告(中山)
- 五桂山南橋白石坳村道提升工程中選結果公告(中山)
- 潮南區臚崗鎮VC81新民一線改造工程項目預算審核服務中選結果公告(汕頭)
- 潮南區臚崗鎮U357泗和一線改造工程項目預算審核服務中選結果公告(汕頭)
同類文章排行
- 廣東煙草湛江市有限公司營銷管理中心2022年農網終端收銀一體柜物資采購項目澄清更正公告(湛江)
- 英德監獄外小圍墻修繕工程造價服務采購項目中選結果公告(清遠)
- 新豐縣松園園區電力遷改項目(10kV線路)-園洞電站支線臨時用電遷改工程預算編制中選結果公告(韶關)
- 廣東煙草湛江市有限公司物流配送中心2022-2025年倉儲及分揀設備維保服務項目中標結果公示(湛江)
- 學校操場東南側跑道地面硬化工程造價咨詢中選結果公告(汕頭)
- 勵學樓內庭天面圍墻安全防護、保管室及其它零星修繕工程造價咨詢中選結果公告(汕頭)
- 南朗街道生活小區污水收集改造工程(一期)監理項目中選結果公告(中山)
- 五桂山南橋白石坳村道提升工程中選結果公告(中山)
- 潮南區臚崗鎮VC81新民一線改造工程項目預算審核服務中選結果公告(汕頭)
- 潮南區臚崗鎮U357泗和一線改造工程項目預算審核服務中選結果公告(汕頭)
最新資訊文章
您的瀏覽歷史


